PATRICK PFLEGER | Architekt HTL/MAS
angebot | projekte | kontakt | links
home
bauprojekte | arbeiten | mitarbeit

Diplomarbeit

> Viamala - Bauen am Abgrund


 

Studien

Sanierungskonzept MFH Schiers

Bauen am Rande der Altstadt

   

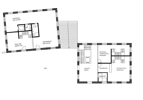
Dorfplatzgestaltung Obersaxen

Schulhauserweiterung Sarn

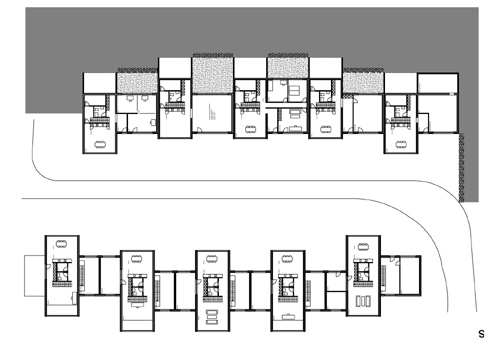
Siedlung am Rande der Stadt